一戸建て 物件一覧 / 熱海・伊豆の不動産購入・売却はアタミリゾートナビ株式会社へ
熱海 不動産 TOP
マンション
戸建
土地
投資物件
物件検索
売却査定
会社概要
物件の一覧表示
他の条件で探す
該当物件数
38
件中
1〜20
件を表示
1
2
次の20件>>
並び替え
新着 
|
価格順 
熱海市上多賀 海と花火を望む高台の中古戸建 2LDK JR伊東線「伊豆多賀」駅より車で約4分 土地面積653u(約197.53坪) 果樹が植えられた広い庭 緑豊かな山景色と共に海と街並みの眺望 打上げ花火鑑賞! 駐車場スペース3台可
一戸建て
2LDK
(敷地:653.00m
2
延床:102.76m
2
)
4,180万円
1年を通して温暖な気候の上多賀は、熱海市の賑やかさとは違う静かで落ち着いた雰囲気の街です。山並みや海に近く、自然に恵まれた周辺の環境も充実しており、釣りスポットで釣りを楽しんだり、地元網代港で採れた新鮮なアジなどの地元魚介類も美味しく頂ける温泉地です。
熱海自然郷 初島台 海を望む高台の中古戸建3LDK 温泉引込可能 緑豊かな山景色と青い海の眺望! JR「熱海」駅より車約23分 豊かな自然に恵まれた熱海人気大型リゾート分譲地 ドックラン、テニスコート、レストランなど共用施設も充実しています! 1日5往復の専用路線マイクロバス運行しています!
一戸建て
3LDK
(敷地:162.00m
2
延床:124.01m
2
)
1,480万円
JR「熱海」駅より車で約23分(8.8q)、観光地の賑わいから程よく距離をおいた海を望む高台に位置します。1年を通して温暖な気候の熱海、温泉のある人気リゾート分譲地です!
熱海市網代 海と花火を望む高台の中古戸建4LDK+S 令和6年築 JR伊東線「網代」駅より車約4分 約358坪の広い敷地 全居室より海を望みます! 別途温泉引込可 駐車場3台分以上
一戸建て
4SLDK
(敷地:1184.01m
2
延床:156.31m
2
)
13,500万円
1年を通して温暖な気候の網代は、熱海市の賑やかさとは違う静かで落ち着いた雰囲気の街です。自然に恵まれた周辺の環境も充実しており、釣りスポットで釣りを楽しんだり、地元網代港で採れた新鮮なアジなどの地元魚介類も美味しく頂ける温泉地です。
湯河原町宮上 全140区画の若草山分譲地 温泉付き和風邸宅 5SLDK 南西角地 陽当り良好 リビングは広々とした約27帖の広さ 自然豊かな環境 美しい山景色を望みます! 駐車スペースは2台駐車可
一戸建て
5SLDK
(敷地:294.64m
2
延床:167.64m
2
)
2,980万円
1年を通じて温暖な気候で過ごしやすく、山と海に挟まれた自然豊かな環境の湯河原町。歴史ある奥湯河原近くの宮上に位置する若草山分譲地は、高島屋が分譲した総区画数140の天然温泉付き分譲地です。
熱海市清水町 利便性の良い熱海市街地に建つ中古戸建 3LDK+S セキスイツーユーホーム施工 JR「熱海」駅より徒歩20分 熱海では希少な平坦地エリア 買物便利な熱海中心街・銀座通り・熱海サンビーチまで徒歩圏!
一戸建て
3SLDK
(敷地:113.32m
2
延床:92.28m
2
)
4,900万円
JR「熱海」駅より徒歩約20分、買い物施設・公共施設・銀座通り・熱海サンビーチまで徒歩圏!市内では珍しく車を持たなくても生活に不憫のない平坦な立地、お買い物に困らない環境です。
湯河原町鍛冶屋 平成1年築 中古戸建4LDK 敷地面積406.66u(122.71坪) 再建築可能 敷地内に物置有り 車を持たなくても生活に不憫のない環境 買い物徒歩圏内 湯河原駅より徒歩15分 自然が残る静かな環境です。
一戸建て
4LDK
(敷地:406.66m
2
延床:130m
2
)
980万円
緑豊かな自然と、鳥の囀りが聞こえるのどかな住宅街〜鍛冶屋〜 湯河原駅より徒歩15分の好立地。徒歩圏内には、湯河原町役場、マックスバリュ湯河原店、ハンディホームセンター湯河原店、キャンドゥ湯河原店、湯河原町立吉浜小学校、湯河原町立湯河原中学校などがあり、車を持たなくても生活に不憫のない環境です。
熱海自然郷大島台 海の眺望と大自然に恵まれた高台の熱海人気大型リゾート分譲地 温泉付き中古3階建3LDK 家具家電付き 駐車場あり 吹抜けリビングと暖炉が備わった開放感のある間取り 2階バルコニーから相模湾、初島を一望 温泉引込済み ドックラン、テニスコート、レストランなど施設も充実! 1日5往復の専用シャトルバスも運行しています!
一戸建て
3LDK
(敷地:286.00m
2
延床:102.11m
2
)
1,950万円
JR「熱海」駅より車で15分(約8q)、観光地の賑わいから程よく距離をおいた相模湾を望む高台に位置します。周辺は鳥の囀りが聞こえる自然豊かな環境、温泉のある熱海人気リゾート分譲地です。大手管理会社が管理しているので、セキュリティ面も安心です。
熱海自然郷 第2富士見台 和風邸宅4LDK+2S 温泉引込可能 緑豊かな山景色の眺望! JR「熱海」駅より車約18分 豊かな緑に包まれた熱海人気大型リゾート分譲地 ドックラン、テニスコート、レストランなど共用施設も充実しています! 1日5往復の専用路線マイクロバス運行で生活便利です!
一戸建て
4SLDK
(敷地:303.00m
2
延床:111.16m
2
)
1,180万円
JR「熱海」駅より車で約18分(7.9q)の距離にあります。1年を通して温暖な気候の熱海、温泉のある人気リゾート分譲地です!
あじろ南熱海が丘 海を望む温泉付ログハウス2LDK 温泉引込済み JR伊東線「網代」駅より車で約10分 野鳥のさえずりを聴きながら散策も楽しめます! 駐車場1台可。
一戸建て
2LDK
(敷地:257.11m
2
延床:63.38m
2
)
1,800万円
JR伊東線「網代」駅より車で約10分の好立地。自然を身近に感じられる雄大なロケーション〜あじろ南が丘〜
熱海自然郷 初島台 海を望む高台の別荘4LDK+倉庫付き 温泉引込済み 緑豊かな山景色と青い海の眺望! JR「熱海」駅より車約20分 豊かな自然に包まれた熱海人気大型リゾート分譲地 ドックラン、テニスコート、レストランなど共用施設も充実しています! 1日5往復の専用路線マイクロバス運行しています!
一戸建て
4LDK
(敷地:303.00m
2
延床:111.16m
2
)
5,900万円
JR「熱海」駅より車で約20分(8.4q)、観光地の賑わいから程よく距離をおいた海を望む高台に位置します。1年を通して温暖な気候の熱海、温泉のある人気リゾート分譲地です!
熱海自然郷アサヒ丘 網代湾一望の和風邸宅 4LDK 南向きの庭でガーデニング、家庭菜園が楽しめます! 温泉引込済 JR「熱海」駅より車約18分(7.9q) 豊かな緑に包まれた熱海人気大型リゾート分譲地 ドックラン、テニスコート、レストランなど共用施設も充実しています! 1日5往復の専用路線マイクロバス運行で生活便利です!
一戸建て
4LDK
(敷地:283.00m
2
延床:103.14m
2
)
4,500万円
JR「熱海」駅より車で約15分(8q)の距離にあります。1年を通して温暖な気候の熱海、温泉のある人気リゾート分譲地です!
伊豆高原 中古戸建3LDK 吹抜けの玄関 1階和室に掘りごたつ 暖かい陽が注ぐテラスの先に広いお庭 駐車場2台分 海を望む高台に立地 静かな住環境 伊豆高原駅から車約8分(3.4q) 当物件近くには、伊豆ぐらんぱるがあります! 〜民泊や貸別荘としてもご利用頂けます。〜
一戸建て
3LDK
(敷地:285.00m
2
延床:109.3m
2
)
1,480万円
海・山の自然が近く、静かな住環境の伊豆高原。首都圏からのアクセスも比較的容易、東京から最短1時間45分とアクセスも可能です。東京から運転の特急踊り子号は、最寄り駅の「伊豆高原」駅で停車します。
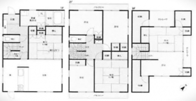
桃山町 花火を望む高台の中古戸建 6LDK 熱海駅裏の閑静な住宅地 JR「熱海」駅徒歩4分 敷地面積485.85u 陽当りの良いお庭付き!
一戸建て
6LDK
(敷地:485.85m
2
延床:144.92m
2
)
12,800万円
熱海駅周辺の希少エリア〜桃山町。東海道新幹線停車駅で都心からのアクセスも良好、「熱海」駅徒歩圏、由緒ある別荘地です。
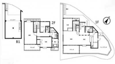
熱海市下多賀3階建中古戸建 7DK+3S 海を見下ろす高台に立地 伊東線「伊豆多賀」駅、「網代」駅の両駅利用可能 二面バルコニー・サンルーフ付き 全居室収納 駐車場2台可 マックスバリュ熱海多賀店1055m ウエルシア熱海市立多賀店1046m 熱海市立多賀小学校992m 熱海市立多賀中学校895m
一戸建て
7SLDK
(敷地:144.69m
2
延床:143.01m
2
)
2,490万円
1年を通して温暖な気候の下多賀は、熱海市の賑やかさとは違う静かで落ち着いた雰囲気の街です。自然に恵まれた周辺の環境も充実しており、釣りスポットでは釣りを楽しんだり、地元網代港で採れた新鮮なアジなどの地元魚介類も美味しく頂ける温泉地です。伊東線「網代」駅より徒歩26分、伊東線「伊豆多賀」駅より徒歩28分と両駅利用可能。
熱海駅周辺の希少エリア物件〜田原本町店舗付き中古戸建3階建〜JR「熱海」駅より徒歩約1分の好立地 大通りに面しており視認性良好! 1階店舗営業中 2階・3階所有者居住中となっています。
一戸建て
5K
(敷地:50.98m
2
延床:110.35m
2
)
7,650万円
JR「熱海」駅より徒歩約1分の好立地!周辺は観光客で賑わう駅前通りの大通りに面しており、視認性良好な店舗付き中古戸建です。
熱海市梅園町一棟売り賃貸マンション 現在満室です! RC造 平成6年築 伊東線「来宮」駅より徒歩約8分 令和6年大規模修繕完了 最上階・海と花火を望むオーナーズルーム 屋上あり フルリフォーム済(令和7年2月完了)
一戸建て
7R
(敷地:167.23m
2
延床:406.38m
2
)
7,800万円
JR「伊東線「来宮」駅より徒歩約8分、多くの観光客が訪れるパワースポットで有名な来宮神社から歩いてすぐのところに立地。近隣周辺には西熱海ゴルフ場、日本一早咲きの梅で有名な熱海梅園があります。
湯河原町吉浜 庭付き中古戸建 3SDK 南向き 閑静な住宅地 水回りフルリフォーム済(2026年) 2階にダイニング・キッチン 豊富な収納スペース 駐車場あり 東台福浦小学校まで410m 真鶴中学校まで1300m
一戸建て
3SDK
(敷地:135.28m
2
延床:81.15m
2
)
1,800万円
熱海のふたつ手前の駅「真鶴」駅は、都心から西へ電車で1時間半とアクセスも良好。住所は湯河原町吉浜ですが、真鶴駅が最寄り駅になります。最寄り駅の「真鶴」駅は、真鶴町観光スポットが点在する魅力的な街で、真鶴駅から高浦海岸まで徒歩10分、魚市場まで徒歩15分 釣りや磯遊び等も楽しめるエリアです!
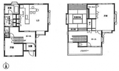
熱海市和田町 2018年築 海と花火を望む庭付き一戸建4SLDK JR「熱海」駅より車で約5分 断熱性・防音・防犯効果の高い快適室内 駐車2台可 平坦地 生活便利な環境です! ドックラン可能! マリンスパ熱海まで徒歩約5分(400m)!
一戸建て
4SLDK
(敷地:438.13m
2
延床:148.65m
2
)
9,300万円
JR「熱海」駅より車で約5分(約2.1q)。買物便利な熱海市街の南側エリアです。スーパー・コンビニエンスストア・病院・海まで徒歩圏内にあり、生活便利な環境です。
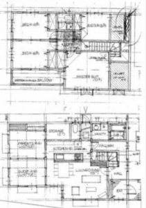
熱海市伊豆山中古戸建 南東向き リフォーム済みの美室6SLDK 2×4工法採用 JR「熱海」駅よりバス13分、「中七尾」バス停徒歩4分 2025年11月リフォーム済
一戸建て
6SLDK
(敷地:199.24m
2
延床:158.42m
2
)
2,580万円
熱海伊豆山の高台に立地。JR「熱海」駅よりバス13分、バス停「中七尾」徒歩約4分とアクセスも良好です。
熱海市伊豆山鉢アラク分譲地 相模湾、花火一望の邸宅 土地面積353坪 地下1階付4階建(約91坪) 温泉引込済 JR「熱海」駅より徒歩14分(1.2q) 別荘・保養所・多世帯住宅 平成18年全面改装! 室内綺麗! サウナ付き石風呂の大型浴室 ソーラー発電機設備設置 屋根付きカーポート(車3〜5台駐車可) 第2種娯楽レクリエーション地区・旅館業可能
一戸建て
4SLDK
(敷地:974.90m
2
延床:300.29m
2
)
39,000万円
熱海市伊豆山鉢アラク分譲地は、JR「熱海」駅の北側高台に位置し、相模湾、海上花火、熱海市街地を一望できる静かな環境が魅力のエリアです。 リゾートマンション、保養所、大型別荘が立ち並ぶエリアで高い人気を誇ります。
他の条件で探す
該当物件数
38
件中
1〜20
件を表示
1
2
次の20件>>
並び替え
新着 
|
価格 
マンションを選択
一戸建てを選択
土地を選択
建物種目
新築マンション
中古マンション
その他
価格
---指定なし---
500万円以上
1,000万円以上
1,500万円以上
2,000万円以上
2,500万円以上
3,000万円以上
3,500万円以上
4,000万円以上
4,500万円以上
5,000万円以上
5,500万円以上
6,000万円以上
6,500万円以上
7,000万円以上
8,000万円以上
9,000万円以上
10,000万円以上
〜
---指定なし---
500万円未満
1,000万円未満
1,500万円未満
2,000万円未満
2,500万円未満
3,000万円未満
3,500万円未満
4,000万円未満
4,500万円未満
5,000万円未満
5,500万円未満
6,000万円未満
6,500万円未満
7,000万円未満
8,000万円未満
9,000万円未満
10,000万円未満
専有面積
---指定なし---
|-30m2以上
|-40m2以上
|-50m2以上
|-60m2以上
|-70m2以上
|-80m2以上
|-90m2以上
|-100m2以上
|-110m2以上
|-120m2以上
|-130m2以上
|-140m2以上
|-150m2以上
|-160m2以上
|-170m2以上
|-180m2以上
|-190m2以上
|-200m2以上
〜
---指定なし---
|-40m2未満
|-50m2未満
|-60m2未満
|-70m2未満
|-80m2未満
|-90m2未満
|-100m2未満
|-110m2未満
|-120m2未満
|-130m2未満
|-140m2未満
|-150m2未満
|-160m2未満
|-170m2未満
|-180m2未満
|-190m2未満
|-200m2未満
|-210m2未満
間取り
---指定なし---
1R / 1K / 1DK
1LDK / 2K / 2DK
2LDK / 3K / 3DK
3LDK / 4K / 4DK
4LDK / それ以上
更新日
一週間以内
画像
指定なし
有り
無し
マンションを選択
一戸建てを選択
土地を選択
建物種目
新築一戸建て
中古一戸建て
その他
価格
---指定なし---
500万円以上
1,000万円以上
1,500万円以上
2,000万円以上
2,500万円以上
3,000万円以上
3,500万円以上
4,000万円以上
4,500万円以上
5,000万円以上
5,500万円以上
6,000万円以上
6,500万円以上
7,000万円以上
8,000万円以上
9,000万円以上
10,000万円以上
〜
---指定なし---
500万円未満
1,000万円未満
1,500万円未満
2,000万円未満
2,500万円未満
3,000万円未満
3,500万円未満
4,000万円未満
4,500万円未満
5,000万円未満
5,500万円未満
6,000万円未満
6,500万円未満
7,000万円未満
8,000万円未満
9,000万円未満
10,000万円未満
土地面積
---指定なし---
|-30m2以上
|-40m2以上
|-50m2以上
|-60m2以上
|-70m2以上
|-80m2以上
|-90m2以上
|-100m2以上
|-110m2以上
|-120m2以上
|-130m2以上
|-140m2以上
|-150m2以上
|-160m2以上
|-170m2以上
|-180m2以上
|-190m2以上
|-200m2以上
〜
---指定なし---
|-40m2未満
|-50m2未満
|-60m2未満
|-70m2未満
|-80m2未満
|-90m2未満
|-100m2未満
|-110m2未満
|-120m2未満
|-130m2未満
|-140m2未満
|-150m2未満
|-160m2未満
|-170m2未満
|-180m2未満
|-190m2未満
|-200m2未満
|-210m2未満
間取り
---指定なし---
1R / 1K / 1DK
1LDK / 2K / 2DK
2LDK / 3K / 3DK
3LDK / 4K / 4DK
4LDK / それ以上
専有面積
---指定なし---
|-30m2以上
|-40m2以上
|-50m2以上
|-60m2以上
|-70m2以上
|-80m2以上
|-90m2以上
|-100m2以上
|-110m2以上
|-120m2以上
|-130m2以上
|-140m2以上
|-150m2以上
|-160m2以上
|-170m2以上
|-180m2以上
|-190m2以上
|-200m2以上
〜
---指定なし---
|-40m2未満
|-50m2未満
|-60m2未満
|-70m2未満
|-80m2未満
|-90m2未満
|-100m2未満
|-110m2未満
|-120m2未満
|-130m2未満
|-140m2未満
|-150m2未満
|-160m2未満
|-170m2未満
|-180m2未満
|-190m2未満
|-200m2未満
|-210m2未満
画像
指定なし
有り
無し
更新日
一週間以内
マンションを選択
一戸建てを選択
土地を選択
価格
---指定なし---
500万円以上
1,000万円以上
1,500万円以上
2,000万円以上
2,500万円以上
3,000万円以上
3,500万円以上
4,000万円以上
4,500万円以上
5,000万円以上
5,500万円以上
6,000万円以上
6,500万円以上
7,000万円以上
8,000万円以上
9,000万円以上
10,000万円以上
〜
---指定なし---
500万円未満
1,000万円未満
1,500万円未満
2,000万円未満
2,500万円未満
3,000万円未満
3,500万円未満
4,000万円未満
4,500万円未満
5,000万円未満
5,500万円未満
6,000万円未満
6,500万円未満
7,000万円未満
8,000万円未満
9,000万円未満
10,000万円未満
土地面積
---指定なし---
|-30m2以上
|-40m2以上
|-50m2以上
|-60m2以上
|-70m2以上
|-80m2以上
|-90m2以上
|-100m2以上
|-110m2以上
|-120m2以上
|-130m2以上
|-140m2以上
|-150m2以上
|-160m2以上
|-170m2以上
|-180m2以上
|-190m2以上
|-200m2以上
〜
---指定なし---
|-40m2未満
|-50m2未満
|-60m2未満
|-70m2未満
|-80m2未満
|-90m2未満
|-100m2未満
|-110m2未満
|-120m2未満
|-130m2未満
|-140m2未満
|-150m2未満
|-160m2未満
|-170m2未満
|-180m2未満
|-190m2未満
|-200m2未満
|-210m2未満
更新日
一週間以内
画像
指定なし/
有り/
無し
マンションを選択
一戸建てを選択
土地を選択
投資用を選択
◆ 沿線
◆ エリア
建物種目
分譲マンション
マンション
アパート1棟
一戸建て
その他
価格
---指定なし---
500万円以上
1,000万円以上
1,500万円以上
2,000万円以上
2,500万円以上
3,000万円以上
3,500万円以上
4,000万円以上
4,500万円以上
5,000万円以上
5,500万円以上
6,000万円以上
6,500万円以上
7,000万円以上
8,000万円以上
9,000万円以上
10,000万円以上
〜
---指定なし---
500万円未満
1,000万円未満
1,500万円未満
2,000万円未満
2,500万円未満
3,000万円未満
3,500万円未満
4,000万円未満
4,500万円未満
5,000万円未満
5,500万円未満
6,000万円未満
6,500万円未満
7,000万円未満
8,000万円未満
9,000万円未満
10,000万円未満
専有面積
---指定なし---
|-30m2以上
|-40m2以上
|-50m2以上
|-60m2以上
|-70m2以上
|-80m2以上
|-90m2以上
|-100m2以上
|-110m2以上
|-120m2以上
|-130m2以上
|-140m2以上
|-150m2以上
|-160m2以上
|-170m2以上
|-180m2以上
|-190m2以上
|-200m2以上
〜
---指定なし---
|-40m2未満
|-50m2未満
|-60m2未満
|-70m2未満
|-80m2未満
|-90m2未満
|-100m2未満
|-110m2未満
|-120m2未満
|-130m2未満
|-140m2未満
|-150m2未満
|-160m2未満
|-170m2未満
|-180m2未満
|-190m2未満
|-200m2未満
|-210m2未満
利回り
---指定なし---
未定
〜5%
5〜10%
10〜
土地面積
---指定なし---
|-30m2以上
|-40m2以上
|-50m2以上
|-60m2以上
|-70m2以上
|-80m2以上
|-90m2以上
|-100m2以上
|-110m2以上
|-120m2以上
|-130m2以上
|-140m2以上
|-150m2以上
|-160m2以上
|-170m2以上
|-180m2以上
|-190m2以上
|-200m2以上
〜
---指定なし---
|-40m2未満
|-50m2未満
|-60m2未満
|-70m2未満
|-80m2未満
|-90m2未満
|-100m2未満
|-110m2未満
|-120m2未満
|-130m2未満
|-140m2未満
|-150m2未満
|-160m2未満
|-170m2未満
|-180m2未満
|-190m2未満
|-200m2未満
|-210m2未満
更新日
一週間以内
画像
指定なし/
有り/
無し
熱海 不動産 TOP
|
お気に入りMYページ
|
お問合せ
|
会社概要
|
売却査定
|
アクセス
|
個人情報の取扱い
|
熱海の別荘