
海を見下ろす高台の3階建中古戸建7DK+3S 〜この景色から一日が始まります〜 |
熱海市下多賀3階建中古戸建 7DK+3S 海を見下ろす高台に立地 伊東線「伊豆多賀」駅、「網代」駅の両駅利用可能 二面バルコニー・サンルーフ付き 全居室収納 駐車場2台可 マックスバリュ熱海多賀店1055m ウエルシア熱海市立多賀店1046m 熱海市立多賀小学校992m 熱海市立多賀中学校895m |
| 価格 |
2,490万円
|
| 間取 |
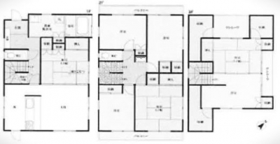
7SLDK
間取り図を確認 |
| 敷地/延床 |
144.69m2 / 143.01m2 |
| 完成年 |
1994年3月(築) |
| 建物向き |
- |
| 階数 |
3階建 |
| 所在地 |
静岡県熱海市下多賀644 地図で確認 |
| 問合せNO |
A1810 |
 |
|