
緑と温泉の高台にある熱海自然郷〜網代湾、大島・花火を望む温泉権利付き中古戸建4SLDK |
熱海自然郷 自然たっぷりの住環境 海・大島・花火を望む温泉権利付き中古戸建4SLDK 熱海人気大型リゾート分譲地 くつろぎを感じる室内 伊豆石の温泉浴室 ヒノキ使用のサウナ付き 多目的に使用可能な地下室 ガーデニングスペース 駐車場1台分可 2019年外壁・屋根塗装・デッキ新設 1日5往復の専用シャトルバス運行 ドックラン、テニスコート、レストラン等、施設も充実しています! |
| 価格 |
4,900万円
|
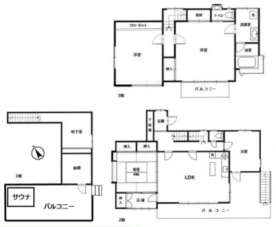
| 間取 |
4SLDK
間取り図を確認 |
| 敷地/延床 |
523m2 / 152.14m2 |
| 完成年 |
1990年3月(築) |
| 建物向き |
- |
| 階数 |
3階建 |
| 所在地 |
静岡県熱海市上多賀 地図で確認 |
| 問合せNO |
B2847 |
 |
|